- 物件名
-
延岡市・西階町【中古住宅】
- 価格
- 200万円 ※R8.0418販売価格値下げ
- 間取り
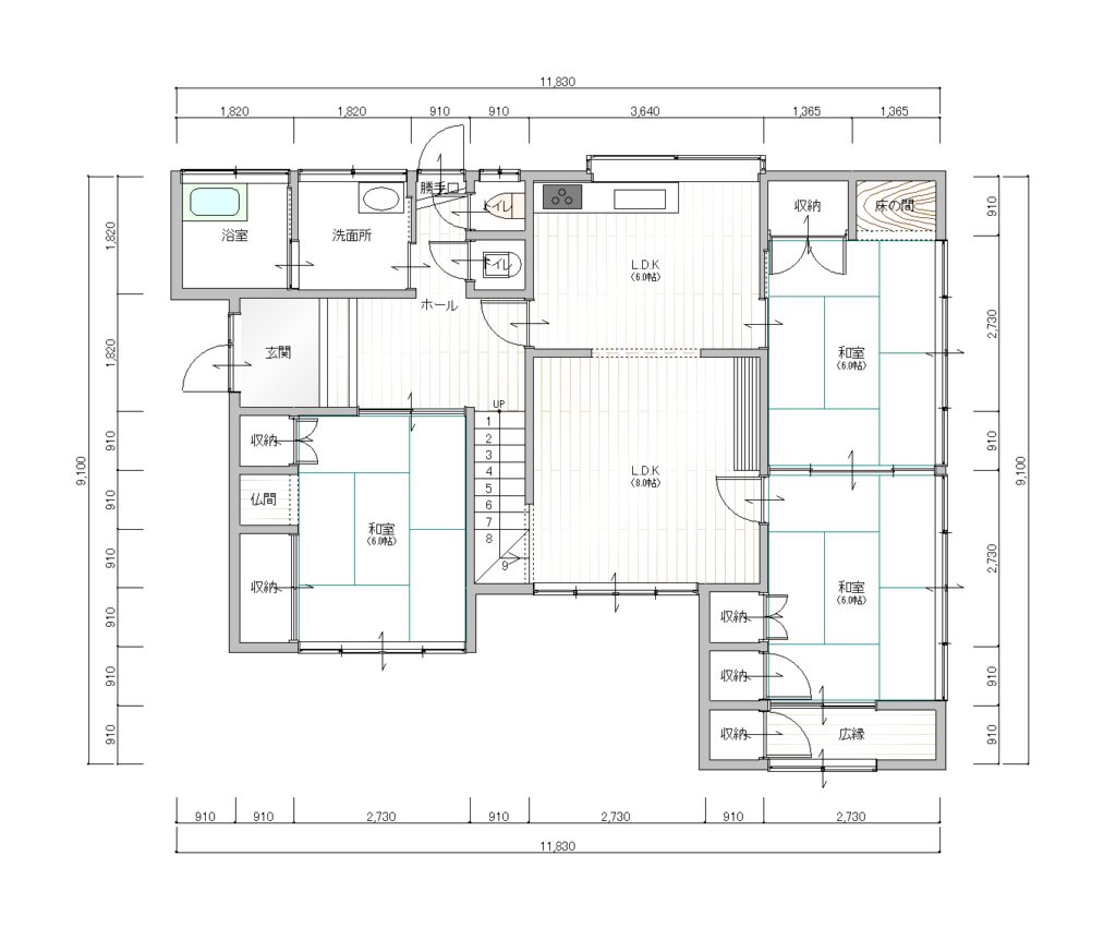
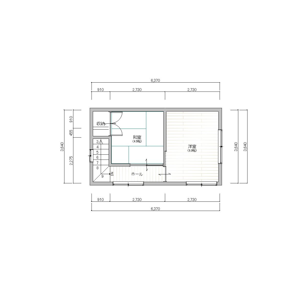
-
6DK
- 土地面積
- 196㎡ (約59.29坪)
- 建物面積
-
117.32㎡ (約35.48坪)
- 所在地
- 宮崎県延岡市西階町2丁目
- 交通
-
宮崎交通 天下橋停 徒歩13分
- 小学校区
- 延岡市立南方小学校 1,205m
- 中学校区
-
延岡市立西階中学校 1,361m
ギャラリー
Gallery
間取り図・平面図
Floor Plan


- 地目
-
宅地
- 用途地域
-
第1種低層住居地域
- 建ぺい率
-
50%
- 容積率
-
100%
- 都市計画
-
市街化区域
- 接道
-
西側:幅員4.8m 間口14m
- 取引形態
-
媒介
- 引き渡し
-
相談
- 仲介手数料
-
330,000円(税込)
- 設備
- 延床面積
-
117.32㎡ (約35.48坪)
- 構造・階数
-
木造セメント瓦葺2階建
- 築年数
-
昭和54年10月
- 備考
-
内覧ご希望の方はお問い合わせください。
※R8.0418販売価格値下げ(旧価格:300万円)
周辺情報
Imformation
アクセス
- ローソン延岡野田三丁目店 (946m)徒歩 12分
- 延岡西階郵便局 (1,249m)徒歩 16分
- 延岡警察署西階交番 (1,322m)徒歩 17分
- 延岡市立西階幼稚園 (1,207m)徒歩 16分
- ゆりかごWEC学院 (1,702m)徒歩 22分

















